
Nowa inwestycja w Esteponie w skład której wchodzą 174 mieszkania z dużymi balkonami i panoramicznym widokiem na morze od strony południowo-zachodniej. Każdy dom ma własne miejsce parkingowe i komórkę lokatorską na parterze, które są ukończone w tym samym czasie co dom.
Osiedle posiada imponujące części wspólne: dwa baseny z solarium, z których można korzystać w najgorętsze miesiące, duże ogrody zaprojektowane przez zespół zajmujący się architekturą krajobrazu, czytelnię i siłownię na świeżym powietrzu do uprawiania sportów na świeżym powietrzu. Posiada również przestrzeń Social Club, siłownię, Putting Green i strefę relaksu, w której można odpocząć bez konieczności opuszczania kompleksu mieszkalnego.
Projekt charakteryzuje się wysokim standardem wykonania, parę opcji wykończenia, obszerny katalog nasadzeń w ogrodach.
Części wspólne, w których można cieszyć się każdym dniem w roku
Dodatkowo udostępniamy Ci aplikację, dzięki której jednym kliknięciem otworzysz wspólne drzwi osiedla, zarządzasz inteligentnymi skrzynkami pocztowymi czy rezerwujesz przestrzenie wspólne.
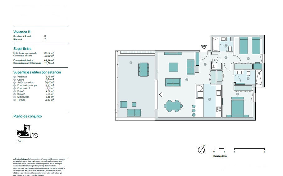
Przedtsawiony tu apartament ma 111 m2 powierzchni i 36 m2 taras
Termin realizacji Q2/Q3 2028